NOVOSTAVBA 1 izbový byt Bratislava predaj Rača Krasňany

  • foto1.jpg
  • foto2.jpg
  • foto3.jpg
  • foto4.jpg
  • foto5.jpg
  • foto6.jpg
  • foto7.jpg
  • foto8.jpg
  • foto9.jpg

1-izbový byt na predaj v Bratislave - Rača

Výhodná garsónka / 1-izbový byt na predaj s nádherným výhľadom – Bratislava, Rača (Krasňany)

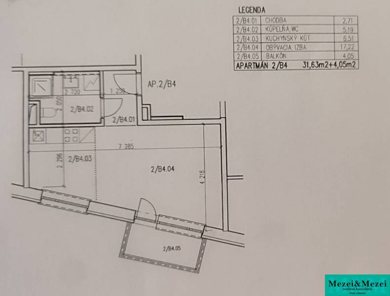
Ponúkame na predaj útulný 1-izbový byt o výmere 34,3 m² vrátane balkónu, nachádzajúcu sa v modernej novostavbe na Peknej ceste, Rača-Krasňany.

Byt je dostatočne priestranný, má veľmi dobrú dispozíciu a praktické usporiadanie:

-plne zariadená kuchynka so spotrebičmi, oddelená od obývacej časti,

-priestranný balkón orientovaný na juh, využiteľný počas väčšiny roka,

-kúpeľňa so sprchovým kútom, moderne a prakticky riešená.

Bytový dom sa nachádza v novom uzavretom areáli s bezpečným parkovaním a je tu aj možnosť dokúpenia parkovacieho miesta priamo pri budove.

Cena: 174 000 € (bez parkovacieho miesta)

V cene je zahrnutý kompletný právny servis, znalecký posudok a k dispozícii máme aj hypotekárneho poradcu, ktorý s nami intenzívne spolupracuje a rád Vám pomôže s financovaním.

Podrobné informácie

prízemie
1
34.3 m²
osobné
úplne prerobený
aktívne
wifi
zariadený

Poloha nehnuteľnosti na mape

Bratislava - Rača, Slovensko

  • Štát Slovensko
  • Kraj Bratislavský
  • Okres Bratislava - Rača
  • Mesto Bratislava - Rača
  • Druh 1-izbový byt - novostavba
  • Typ predaj
  • Vlastníctvo osobné
  • Kontakt Centrálny kontakt: +421 911 164 174
  • Pridané 3. október 2025 11:44 hod

Pre viac informácií kontaktujte